Căn hộ Ascentia Phú Mỹ Hưng là một trong những căn hộ khá đặc biệt trong dự án khu phức hợp Phú Mỹ Hưng. Ascentia không chỉ đặc biệt ở vị trí mà còn sở hữu phong cách thiết kế vô cùng ấn tượng. Từ đó đem lại cho mọi cư dân một cuộc sống bình yên, trong lành ngay giữa sự náo nhiệt của trung tâm thành phố.
Danh mục
1. Tổng quan chung về căn hộ Ascentia Phú Mỹ Hưng
Căn hộ thuộc dự án The Ascentia Phú Mỹ Hưng nằm tọa lạc tại Lô S4-3, Đại lộ Nguyễn Lương Bằng, Phường Tân Phú, Quận 7. Diện tích xây dựng là 4,680 m2 với tổng số 242 căn hộ. Trong đó:
- 44 căn hộ 1 phòng ngủ với diện tích 49 đến 55 m2.
- 91 căn hộ 2 phòng ngủ với diện tích từ 77 đến 84 m2.
- 88 căn hộ 3 phòng ngủ với diện tích 108m2.
- 9 căn hộ Duplex (căn hộ thông tầng) với diện tích từ 160 đến 200 m2.
- 10 căn hộ Penthouse nằm trên cao với diện tích từ 131 đến 238 m2.
- 18 căn hộ shophouse diện tích từ 53 đến 211m2.

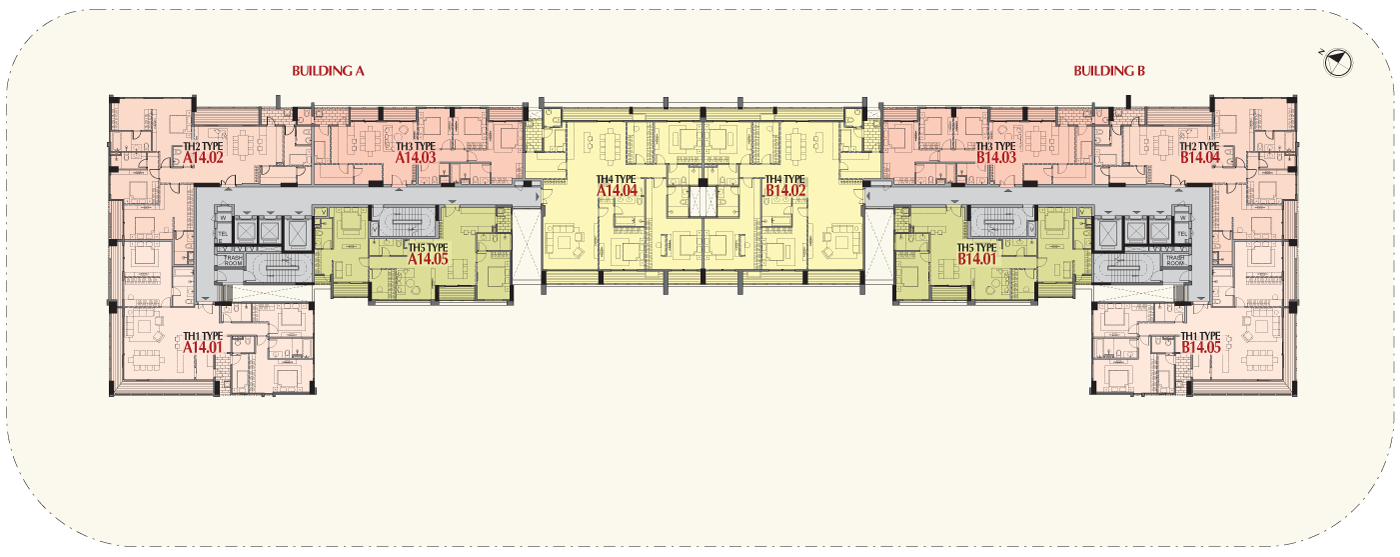
Mặt bằng từng tầng của căn hộ Ascentia Phú Mỹ Hưng như sau:
- Tầng trệt gồm 18 căn shophouse và 9 căn Duplex.

- Tầng 2 gồm bãi đậu xe, căn hộ Duplex và shophouse.

- Tầng 3 gồm các căn hộ và khu vực tiện ích.

- Tầng 4, 5,6,7,8,9,10,11,12,13,14 gồm các căn hộ từ 1 đến 3 phòng ngủ.




- Tầng 15 gồm các căn hộ Penthouse

Vị trí căn hộ Ascentia Phú Mỹ Hưng
Dự án Ascentia Phú Mỹ Hưng nằm ngay tại mặt tiền trục đường thương mại Nguyễn Lương Bằng. Đây là một trong những tuyến đường chính kết nối nhiều tiểu khu nhất trong khu đô thị Phú Mỹ Hưng. Cụ thể là công viên Nam Viên, khu thương mại Tài Chính Quốc Tế, khu căn hộ Midtown, khu Y tế Điều dưỡng, khu The Crescent. Vì thế, The Ascentia chính là tâm điểm kết nối giao thương và là sự giao thoa giữa các nguồn vượng khí.

Khu căn hộ Ascentia Phú Mỹ Hưng tọa lạc tại Lô S4-3, đường Nguyễn Lương Bằng, Phú Mỹ Hưng, phường Tân Phú, quận 7, Thành Phố Hồ Chí Minh. Điểm đặc biệt của vị trí này là sở hữu 4 mặt tiền đường lớn. Trong đó ngoại quan chính quay ra trục đường Nguyễn Lương Bằng. Từ đây sẽ tạo ra vô vàn tiện ích về mặt đi lại cho cư dân. Cụ thể như:
- Thuận tiện cho việc mua sắm ở khu thương mại dịch vụ, gần khu trung tâm Phú Mỹ Hưng.
- Rất gần khu công viên xanh Nam Viên với 20.000 m2 ở đối diện phía bên kia tòa nhà.
- Công trình cũng gần với giao điểm của 3 nhánh sông với dòng nước êm đềm, tự nhiên, thông thủy ngày đêm.
Các tiện ích của căn hộ Ascentia Phú Mỹ Hưng
Có thể nói, khu căn hộ cao cấp Ascentia Phú Mỹ Hưng thể hiện rõ phong cách thiết kế giao hòa giữa trường phái Bauhau Châu Âu cùng với giá trị ngũ hành mang đậm nét của phong cách Á Đông. Từ đó giúp mọi cư dân luôn cảm nhận được cuộc sống của phố thị ngay chính nơi ở của mình.

Điển hình là đơn vị Korn Architects và Artsy Expressions đã đảm nhận phương án nội thất với tiện ích cho hai block cao 15 tầng. Mục đích hướng tới của dự án là phục vụ đa dạng các đối tượng cư dân từ các gia đình ít người, đa thế hệ hay cả người độc thân. Do vậy đội ngũ kiến trúc sư đã đa dạng hóa các tiện ích sao cho phù hợp với nhiều đối tượng, nhiều độ tuổi khác nhau. Qua đó tạo điều kiện để bất kỳ ai cũng có thể sử dụng mọi tiện ích thuận tiện ở bất kỳ thời điểm nào trong ngày.
Dịch vụ tiện ích nội khu căn hộ Ascentia Phú Mỹ Hưng
Tiện ích nội khu của dự án The Ascentia Phú Mỹ Hưng được bố trí ở nhiều mặt bằng. Từ khối đế, tầng 3 và cả tầng mái được phân bổ tiện ích theo chiều dọc giúp mật độ sử dụng sẽ được kéo dãn. Qua đó cũng tránh được tình trạng cư dân dồn vào một khu vực gây tắc nghẽn đường đi cũng như tập trung quá đông người ở một vị trí.
Đầy đủ các dịch mua sắm, vui chơi, làm đẹp
Ở phần đế tòa nhà sẽ quy hoạch các căn shop và thực hiện đồng bộ với tuyến phố thương mại xung quanh. Theo kế hoạch, các shop này Phú Mỹ Hưng không bán mà tìm đối tác cho thuê nhằm đảm bảo việc phân bố các dịch vụ đồng đều. Cư dân tại nơi đây sẽ không mất thời gian tìm kiếm mà chỉ cần di chuyển bằng chiếc thang máy thôi là đã có thể sử dụng hàng loạt các dịch vụ mua sắm, làm đẹp, ăn uống…

Đại sảnh căn hộ Ascentia Phú Mỹ Hưng sang trọng, cao cấp
Ở dự án này, sảnh đón tiếp được chủ đầu tư chi lớn sao cho chúng giống như những sảnh đón của khách sạn cao cấp. Dự án được chia làm hai tòa nhà A và B với hai lối đi hoàn toàn riêng biệt. Vật liệu sử dụng để trang trí vô cùng cao cấp, theo xu hướng hiện đại đang thịnh hành trên thế giới. Điển hình như sử dụng thép không gỉ, gạch khổ lớn….
Chủ đầu tư cùng các đối tác đã nghiên cứu kỹ về phong thủy để bố trí sảnh theo hành Kim và hành Mộc nhằm thu hút toàn bộ vượng khí vào tòa nhà. Các yếu tố ngũ hành cũng được đưa vào thiết kế cho sảnh. Thông qua việc thiết kế màu sắc vật liệu, sử dụng họa tiết gợn sóng như dòng chảy của sông.

Hồ bơi thư giãn
Tầng 3 của khu dự án Ascentia Phú Mỹ Hưng này được thiết kế là khu nghỉ dưỡng. Trong đó hồ bơi ngoài trời dài gần 30m ở vị trí trung tâm. Bên cạnh hồ bơi người lớn còn có hồ bơi trẻ em. Các thành viên trong gia đình có thể cùng nhau tư giãn mà không phải di chuyển quá xa. Bố mẹ cũng có thể thư giãn ngay bên cạnh và có thời gian trông chừng con luôn.
Đủ các phòng tập cho người lớn, khu vực vui chơi cho trẻ em
Các không gian chức năng như phòng tập yoga, phòng sauna nam, nữ, phòng spa, phòng cộng đồng, phòng trẻ em.. cũng được đầu tư chủ động bố trí đầy đủ rất tiện cho việc trải nghiệm dịch vụ của cư dân.
Khu sinh hoạt ngoài trời trên tầng áp mái
Tầng trên cùng của tòa nhà được khai thác làm vườn trên mái với 3 khu vực khác nhau. Phía bên phải có khu vực để hoạt động nhẹ nhàng như Yoga, phía bên trái là sân chơi ngoài trời dành cho trẻ em. Một khu vực ở giữa cho người dân có thể dạo bộ, thư giãn.
Một số hệ thống tiện ích ngoại khu tại Ascentia
Từ các căn hộ chung cư Ascentia Phú Mỹ Hưng này, người dân có thể dễ dàng di chuyển sang khu phức hợp Midtown cách the Ascentia 300m. Midtown hiện tại đang triển khai 2 công viên hoa anh đào. Sau 2 năm tới sẽ tiếp tục triển khai hàng trăm căn shop và nhiều tiện ích đa dạng phục vụ cho cả khu dân cư nơi đây cũng như các dự án lân cận The Ascentia.
Bên cạnh đó, cư dân còn có thể di chuyển dễ dàng đến các trường học, siêu thị, chợ, bệnh viện gần đó. Không những vậy, chúng ta còn có thể đi dạo mỗi ngày bên Hồ Bán Nguyệt, cầu Ánh Sao.
Kiểu thiết kế căn hộ Ascentia Phú Mỹ Hưng
The Ascentia Phú Mỹ Hưng là một tòa nhà hiện đại với hình khối rất vuông vức, đường nét cơ bản và màu sắc khá trung tính và nhã nhặn. Đồng thời có sự giao hòa cùng thiên nhiên thông qua các hoa viên tại tầng 4, tầng mái.
Vật liệu thiết kế cho các căn hộ cũng được lựa chọn dựa trên tiêu chí có màu sắc tự nhiên của đất đá, có cây và có đặc tính thân thiện với môi trường và vô cùng bền vững với thời gian. Màu sắc ánh sáng trong các căn hộ cũng thiên về ấm áp, nhẹ nhàng tạo cảm giác cho các thành viên như bước vào khu nghỉ dưỡng.

Toàn bộ các căn hộ đều được thiết kế mở và tận dụng tối đa ánh sáng của tự nhiên cũng như gió trời. Cửa vào căn hộ gần như chạm trần để tạo sự thông thoáng nhất cho các không gian chức năng.
Vì sao nên sở hữu căn hộ Ascentia Phú Mỹ Hưng?
Theo các chuyên gia phong thủy cho biết thế đất của Ascentia là thế tọa thủy. Ở thế này giúp hội tụ vượng khí mang đến nhiều tài lộc, may mắn và thành công cho gia chủ.
Với vị trí là nơi các nhánh sông chảy vào lưu vực tạo lên luồng khí hội tụ. Nhờ đó giúp cuộc sống của người dân nơi đây như được bao quanh bởi sự thịnh vượng. Gia chủ khi sinh sống tại đây không chỉ sung túc về mặt tiền tài mà còn rất dồi dào về tiềm năng, sự phát triển trí tuệ của người.

Điều này cho thấy những người kinh doanh, có sự nghiệp riêng có thể sẽ có nhiều cơ hội phát triển tốt hơn. Hoặc có thể sẽ có nhiều dự án mới trong tầm tay của mình.
Điều đặc biệt ở vị trí này đó là số lượng các căn hộ bán ra rất hạn chế. Do vậy nếu thật sự may mắn và hữu duyên lắm mới có thể sở hữu được căn hộ tại đây.
Phương thức thanh toán khi mua căn hộ Ascentia Phú Mỹ Hưng thế nào?
Phương thức thanh toán của căn hộ Ascentia Phú Mỹ Hưng vô cùng hấp dẫn chỉ với 20% giá trị sản phẩm. Cùng với đó là mức lãi suất cực thấp với thời gian kéo dài giúp mọi khách hàng đều có cơ hội sở hữu một căn hộ cao cấp của Phú Mỹ Hưng.
Trên đây là tổng hợp thông tin về căn hộ Ascentia Phú Mỹ Hưng mà chúng tôi muốn chia sẻ đến các bạn. Nếu muốn biết giá bán, xem nhà mẫu và giải đáp thêm các thắc mắc khác thì đừng ngại liên hệ vào số Hotline của chúng tôi để được hỗ trợ tận tình hơn.
